

Ale -17%
TUHA
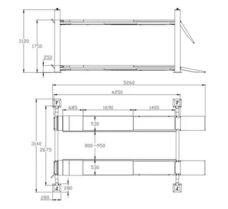
TUHA TN-330 matalanostin, paineilmalukollinen, 3000kg, 400 V
Hydraulitoiminen pinta-asennettava 3,0 tonnin pneumaattisesti avattavilla lukoilla ja neljällä sylinterillä varustettu saksinostin, joka nostaa 96 cm korkeuteen. Edullinen ja vankkarakenteinen...
2490,00 €(Sis.alv)Ovh. 2990,00 €(Sis.alv)
1984,06 €(alv 0%)
Heti verkkokaupasta ja Kempeleen varastosta 3 kpl
Arkisin ennen klo 15:00 tehdyt tilaukset lähetetään samana päivänä

















